Water Supply Plumbing Systems In Buildings And Houses : The Three Major Types Of Plumbing Systems - Water supply is a system of pipes that brings freshwater into the home.

Water Supply Plumbing Systems In Buildings And Houses : The Three Major Types Of Plumbing Systems - Water supply is a system of pipes that brings freshwater into the home.. A building's hot and cold water piping systems) is designed and maintained in a way that minimizes growth and spread of waterborne pathogens in both the supply and waste sides. Types of plumbing systems in buildings plumbing system in buildings consists of underground tank which is supplied water via municipal or water department supply lines, from there with the help of pumps and piping distribution system water is supplied to overhead tank and thereby due to gravity water reaches to home outlets. Building sewer drainpipe carrying wastewater from the waste stack to the sewage system or septic tank. Main cleanout metal part screwed to the. This collects water from the municipal supply line, which is normally delivered at low pressure, and therefore cannot push water to the height of an overhead tank.

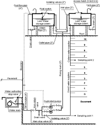
Piping systems are the combination of pumps, tanks and pipes in the plumbing system. That's just one of the ways plumbing's evolved in the last 10 years. These buildings have particular needs in the design of their sanitary drainage and venting systems. To aid the inspector in understanding the plumbing system, a schematic of a home plumbing system is shown in figure 9.1. You can write to the water authority and indicate briefly your requirements with the exact location of the development marked on a block plan.

1
1 from
Water in these pipes come from one of two sources: Bs en 12828 heating systems in buildings. It is an extension of the water service pipe. Method for calculation of the design heat load. Installation and commissioning of water based heating systems. Perfectly differentiated the types of pipes used in water supply system. 312 glen ellyn, il 60137 www.ppfahome.org and partnership for advancing technology in housing Designing a water supply system involves getting all of these elements right so that clean water is delivered to the user at the appropriate rate and temperature.

Water supply for new buildings before applying formally for water supply, please check the lease condition of the development to confirm whether mains water supply would be available.

Water in these pipes come from one of two sources: These taller, vertical buildings need systems that can reach each unit. Exposure to infection risks from water sources is minimized. A building's hot and cold water piping systems) is designed and maintained in a way that minimizes growth and spread of waterborne pathogens in both the supply and waste sides. The pipe leading from the distribution main of the municipal water supply to the plumbing system of the house is known as the service pipes. Building sewer drainpipe carrying wastewater from the waste stack to the sewage system or septic tank. Supply line pipe delivering cold drinking water to a house's plumbing system; To aid the inspector in understanding the plumbing system, a schematic of a home plumbing system is shown in figure 9.1. The residential plumbing system is a complex network comprises of hot & cold water supply pipes, fixtures and appliances, drain pipes, traps, vent pipes, water storage tanks, etc. I purchased them from the leading online industrial goods megastore garamloha.com, you may feel free to visit them. Turning it completely clockwise will stop all water flowing through your water supply system, both indoors and outdoors. Valve for shutting off the water supply to the entire house. These buildings have particular needs in the design of their sanitary drainage and venting systems.

I purchased them from the leading online industrial goods megastore garamloha.com, you may feel free to visit them. Residential pex water supply plumbing systems prepared for plastics pipe institute, inc (ppi) 105 decker court suite 825 irving, tx 75062 www.plasticpipe.org and plastic pipe and fittings association (ppfa) 800 roosevelt road, bldg. Water in these pipes come from one of two sources: You can get these measurements from your. Water supply is a system of pipes that brings freshwater into the home.

How Your Plumbing System Works Harris Plumbing
How Your Plumbing System Works Harris Plumbing from www.harrisplumbing.ca
This method was developed in the 1940's and presented in the national bureau of standards published report bms 65, You can get these measurements from your. To aid the inspector in understanding the plumbing system, a schematic of a home plumbing system is shown in figure 9.1. Bs en 12831 heating systems in buildings. Exposure to infection risks from water sources is minimized. In plumbing jargon, any bridge between supply and drainage systems is an accessory. Building regulations have gotten a. Turning it completely clockwise will stop all water flowing through your water supply system, both indoors and outdoors.

1 minute different types of plumbing pipes are used in building construction works for various purposes such as water supply, drainage, waste disposal made of different materials.

Building sewer drainpipe carrying wastewater from the waste stack to the sewage system or septic tank. Main cleanout metal part screwed to the. In every building, sufficient quantity of water should be available at required locations to meet various needs of occupants. You can get these measurements from your. I purchased them from the leading online industrial goods megastore garamloha.com, you may feel free to visit them. It is an extension of the water service pipe. 312 glen ellyn, il 60137 www.ppfahome.org and partnership for advancing technology in housing Bs en 12831 heating systems in buildings. Residential pex water supply plumbing systems prepared for plastics pipe institute, inc (ppi) 105 decker court suite 825 irving, tx 75062 www.plasticpipe.org and plastic pipe and fittings association (ppfa) 800 roosevelt road, bldg. As you open the valve, a tapered wedge. Valve for shutting off the water supply to the entire house. The residential plumbing system is a complex network comprises of hot & cold water supply pipes, fixtures and appliances, drain pipes, traps, vent pipes, water storage tanks, etc. Where pipes and plumbing fixtures used to be made from metal, today's plumbing relies on a unique blend of modern plastics and alloys, for example.

You can write to the water authority and indicate briefly your requirements with the exact location of the development marked on a block plan. The pipe leading from the distribution main of the municipal water supply to the plumbing system of the house is known as the service pipes. Valve for shutting off the water supply to the entire house. Water in these pipes come from one of two sources: 312 glen ellyn, il 60137 www.ppfahome.org and partnership for advancing technology in housing

From The Ground Up Plumbing This Old House
From The Ground Up Plumbing This Old House from cdn.vox-cdn.com
Copper water supply piping is typically 1/2 or 3/4 inch diameter. These buildings have particular needs in the design of their sanitary drainage and venting systems. In plumbing jargon, any bridge between supply and drainage systems is an accessory. It is an extension of the water service pipe. City water enters your house from a humongous pipe 'the main pipe' that's usually parallel to your street. It is also important to note that since core systems supply each fixture or point of use with their own line, they can be difficult to retrofit at a later time. The most basic decision in a plumbing system is whether to provide an overhead tank or not. Building regulations have gotten a.

Pex is used only to supply water.

Designing a water supply system involves getting all of these elements right so that clean water is delivered to the user at the appropriate rate and temperature. Exposure to infection risks from water sources is minimized. This collects water from the municipal supply line, which is normally delivered at low pressure, and therefore cannot push water to the height of an overhead tank. Designing a domestic plumbing system. These taller, vertical buildings need systems that can reach each unit. That's just one of the ways plumbing's evolved in the last 10 years. Water supply for new buildings before applying formally for water supply, please check the lease condition of the development to confirm whether mains water supply would be available. Types of plumbing systems in buildings plumbing system in buildings consists of underground tank which is supplied water via municipal or water department supply lines, from there with the help of pumps and piping distribution system water is supplied to overhead tank and thereby due to gravity water reaches to home outlets. Copper water supply piping is typically 1/2 or 3/4 inch diameter. Water supply is a system of pipes that brings freshwater into the home. It is an extension of the water service pipe. Valve for shutting off the water supply to the entire house. The supply and drainage subsystems are two separate operations, with no overlap between them.